Apartment, 136m², Marousi (North Athens), 455.000 €

           


455.000


136 m²


4 bedrooms


2 bathrooms

Location Marousi (North Athens)
Price 455.000 €
Living Area 136 m²
Type Apartment For sale
Bedrooms 4
Bathrooms 2
Floor Ground floor
Year built 1980
Heating -
Energy class C
Realtor listing code 55963
Listing published 0000-00-00 00:00:00
This information is only visible to registered members
Listing updated 0000-00-00 00:00:00
This information is only visible to registered members
Access by - Zone -
Orientation - Parking space No
View Newly built
Air conditioning Furnished
Parking Garden
Pets allowed Alarm
Holiday home Luxury
Satellite dish Internal stairway
Elevator Storage room
Veranda Pool
Playroom Fireplace
Solar water heater Loft
Safety door Penthouse
Corner home Night steam
Floor heating Preserved
Neoclassical

Description

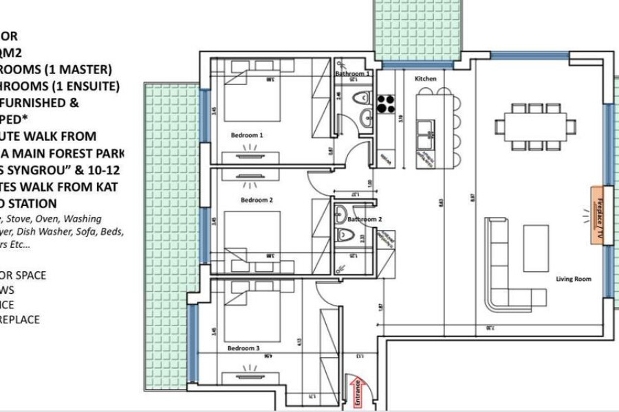
For sale under construction apartment of 136 sq.meters in Athens. The apartment is situated on the in der 1. Etage. It consists of 3 bedrooms, living room with kitchen, 2 shower WC. Flat has front layout. A view of the city, the forest opens up from the windows. There are: a fireplace, air conditioning, awnings. The owners will be leaving the furniture with the sale. Building has an elevator.

The apartment is located in Kifissia .

Read more
GREKODOM ATHENS
Grekodom Development
Contact agent