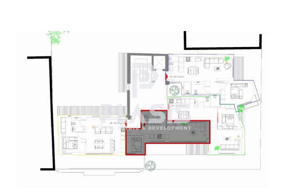
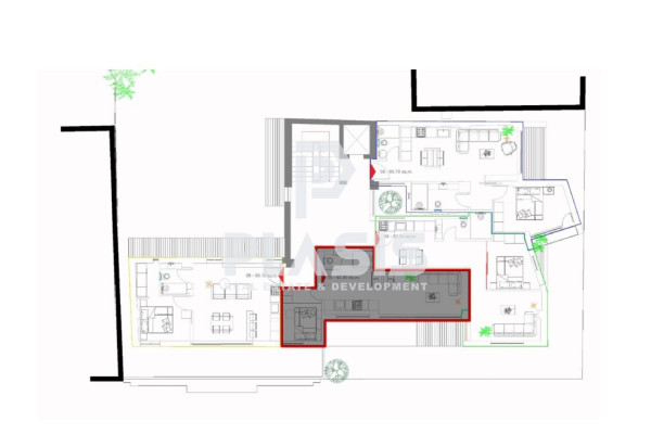
Residence, 86m², Piraeus - Chatzikyriakeio (Piraeus), 430.000 €

           


430.000


86 m²


2 bedrooms


n.a.

Location Piraeus - Chatzikyriakeio (Piraeus)
Price 430.000 €
Living Area 86 m²
Type Residence For sale
Bedrooms 2
Floor 2nd
Levels 1
Year built 2025
Heating Fan coil
Energy class A+
Realtor listing code 1724147
Listing published 0000-00-00 00:00:00
This information is only visible to registered members
Listing updated 0000-00-00 00:00:00
This information is only visible to registered members
Access by No road access Zone Residential
Orientation East Parking space No
View Newly built
Air conditioning Furnished
Parking Garden
Pets allowed Alarm
Holiday home Luxury
Satellite dish Internal stairway
Elevator Storage room
Veranda Pool
Playroom Fireplace
Solar water heater Loft
Safety door Penthouse
Corner home Night steam
Floor heating Preserved
Neoclassical

Description

Apartment For Sale, floor: 2nd, in the area: Piraiki - Hatzikyriakeio. The area of ​​the property is 86 sq.m. It consists of:, 2 bedrooms, 1 kitchen/s, 1 living room/s. It was built in 2025. The heating of the property is Individual with Fan coil, while Soundproofing, Thermal insulation is also available, it has Aluminum frames, Thermal switches with Double glazing, energy certificate: A+ and the floors are: Tiles. Balconies. Its condition is: Newly built, Amazing, it is close to Transportation, Park, Sea, School, Square, Market, Dining, it has a good view. The property is Painted, Bright, Airy, Sunny, Handicapped Access/Ramp, High Floor Residence, Luxurious, is suitable for Golden visa, Investment, Income, Cohabitation and also has the following features and benefits: Elevator, Security Door, CCTV, Internet, Night Power, Three Phase Power, Automatic Watering, Lawn, Trees, Pets Allowed, Quiet Neighborhood, Terrace, Sewer. ENERGY BUILDING: Energy class A+, thermal insulation, sound insulation, heat-switching aluminum frames with double glazing. HEATING & AIR CONDITIONING: Individual heating with fan coil unit (FCU) through a reversible heat pump. LOCATION: Located close to transport, park, sea, school, square, market, restaurant. Good view, quiet neighborhood. IDEAL FOR GOLDEN VISA, investment, income, cohabitation... Price: €430,000. Plasis Real Estate Glyfada, Contact Phone: 2109601909, email: [email protected]

Read more
Plasis Real Estate + Development
PLASIS REAL ESTATE + DEVELOPMENT
Contact agent