Residence, 420m², Saronida (Rest of Attica), 4.500 €

           


4.500


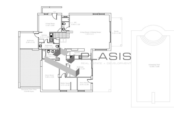
420 m²


5 bedrooms


2 bathrooms

Location Saronida (Rest of Attica)
Price 4.500 €
Living Area 420 m²
Type Residence For rental
Bedrooms 5
Bathrooms 2
WC 2
Floor Ground floor
Levels 2
Year built 2009
Heating Petrol
Energy class B
Realtor listing code 1134265
Listing published 0000-00-00 00:00:00
This information is only visible to registered members
Listing updated 0000-00-00 00:00:00
This information is only visible to registered members
Distance to sea 1000 meters Access by No road access
Zone Residential Orientation East
Parking space Yes
View Newly built
Air conditioning Furnished
Parking Garden
Pets allowed Alarm
Holiday home Luxury
Satellite dish Internal stairway
Elevator Storage room
Veranda Pool
Playroom Fireplace
Solar water heater Loft
Safety door Penthouse
Corner home Night steam
Floor heating Preserved
Neoclassical

Description

Detached House For Rent, floor: Ground Floor, 1st (2 Levels), in the area: Saronida. The area of ​​the property is 420 sq.m. and is located on a plot of 800 sq.m. It consists of:, 5 bedrooms (1 master), 2 bathroom/s, 2 wc, 2 living room/s, while it has 2 parking spaces (2 in open space). It was built in 2009. The heating of the property is Autonomous with Oil, while also available Heating per level, Air Conditioning, Solar, it has Aluminum frames with Double glazing, energy certificate: B and the floors are: Tiles, Marble. Balconies, 40 sq.m.. Its condition is: Amazing, located close to Transport, Sea, School, 500 Meters from town, 1000 Meters from beach, 20000 Meters from airport, has Unobstructed view. The property is Painted, Furnished, Frontage, Bright, Airy, Luxurious, it is suitable for Investment and also has the following features and advantages: Screens, Electric. Appliances, Storage, Attic, Internal Staircase, Pool, Garden, Security Door, Alarm, Internet, No Shared Services, Automatic Watering, Lawn, Trees, Pets Allowed. guest house, heated pool, landscaped grounds. Price: €4,500. Plasis Real Estate Glyfada, Contact Phone: 2109601909, email: [email protected]

Read more
Plasis Real Estate + Development, ΜΟΝΟΠΡΟΣΩΠΗ ΙΔΙΩΤΙΚΗ ΚΕΦΑΛΑΙΟΥΧΙΚΗ ΕΤΑΙΡΕΙΑ - ΜΕΣΙΤΙΚΗ ΕΤΑΙΡΕΙΑ ΑΣΤΙΚΩΝ ΣΥΜΒΑΣΕΩΝ
PLASIS REAL ESTATE + DEVELOPMENT
Contact agent