Residence, 37m², Kallithea (South Athens), 210.000 €

           


210.000


37 m²


1 bedroom


1 bathroom

Location Kallithea (South Athens)
Price 210.000 €
Living Area 37 m²
Type Residence For sale
Bedrooms 1
Bathrooms 1
Floor 4th
Levels 1
Year built 2024
Heating -
Energy class A
Realtor listing code 1064455
Listing published 0000-00-00 00:00:00
This information is only visible to registered members
Listing updated 0000-00-00 00:00:00
This information is only visible to registered members
Distance to sea 5000 meters Distance to port / airport 7500 meters
Access by No road access Zone Residential
Orientation North-East Parking space No
View Newly built
Air conditioning Furnished
Parking Garden
Pets allowed Alarm
Holiday home Luxury
Satellite dish Internal stairway
Elevator Storage room
Veranda Pool
Playroom Fireplace
Solar water heater Loft
Safety door Penthouse
Corner home Night steam
Floor heating Preserved
Neoclassical

Description

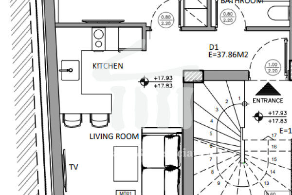
For sale newly built 4th floor apartment under construction in Sikelia Hill Kallithea. The area of ​​the property is 37 sq.m. and is located on a plot of 162.10 sq.m. It consists of 1 bedroom, bathroom and kitchen open plan with the living room and is furnished. It has been built in 2024 and will be completed in 2025. The heating of the property is autonomous, while air conditioning, solar heating and thermal insulation are also available. It has thermally insulated aluminum windows with double glazing, energy certificate A and tiled floors. It is located close to metro, tram, public transport, park and a short distance from the Acropolis and Stavros Niarchos Foundation. It overlooks the urban landscape and has a northeastern orientation. The apartment is front facing, bright, airy and suitable for students and short term rentals. It also has awnings, elevator, jacuzzi, basement storage, security door, intercom, alarm, and electric shutters. Price: €210,000 Maniatis & Co., Contact phone: 2104190703, email: [email protected], website: www.e-mesitis.com

Read more
Maniatis & Associates
Maniatis
Contact agent